Logo Lluïsa Arranz

Lluïsa Arranz

Arquitecto Técnico
 
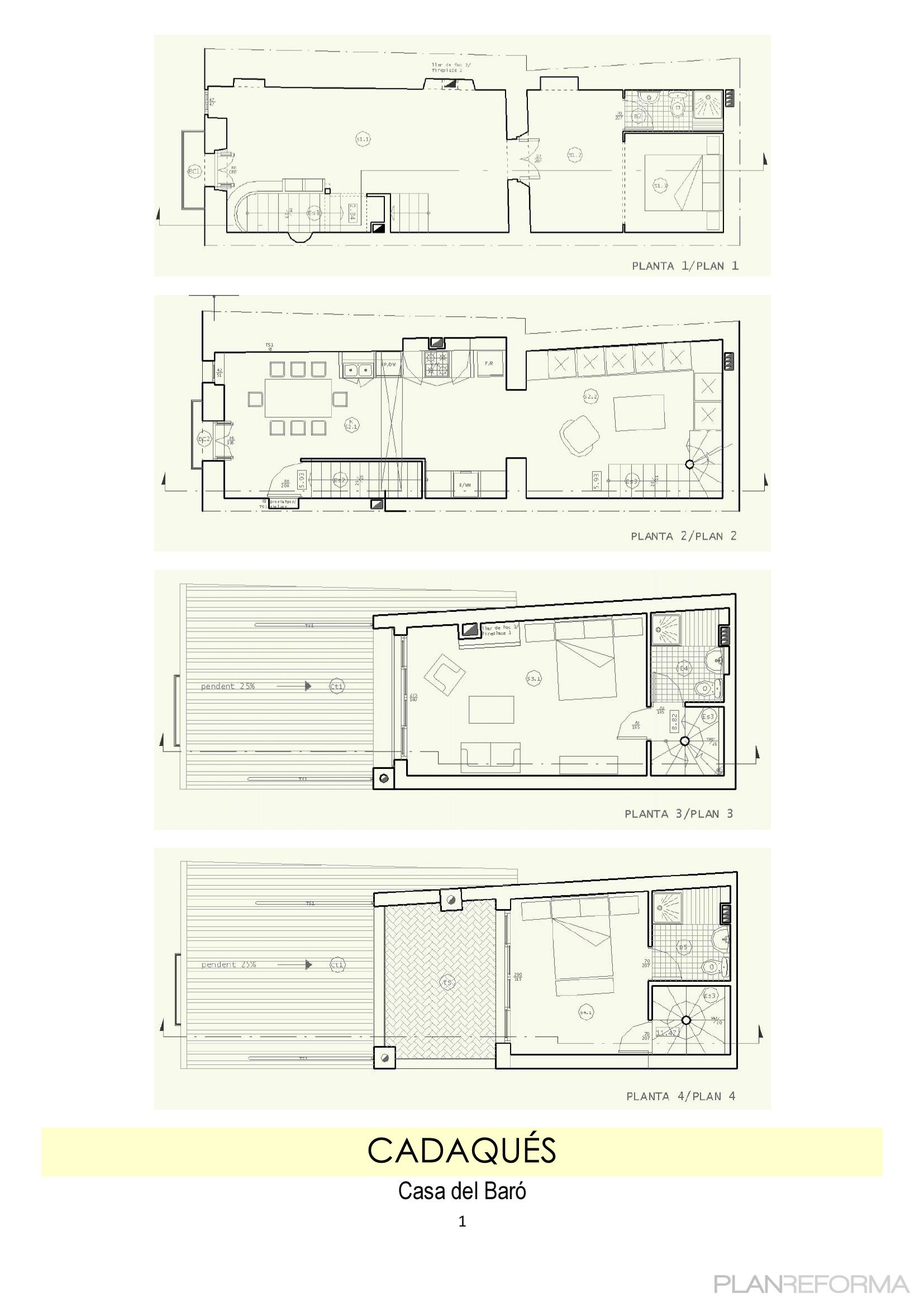
Loft Estilo rustico Color azul, blanco, gris, gris, negro  diseñado por Lluïsa Arranz | Arquitecto Técnico | Copyright Los dibujos son de mi propiedad.

Loft Estilo rustico Color azul, blanco, gris, gris, negro diseñado por Lluïsa Arranz | Arquitecto Técnico | Copyright Los dibujos son de mi propiedad.

Añadir a mi cajón | (0) Votar esta imagen
                                                                
  • Tipo de obra: Decoracion
  • estilo: Rustico
  • Habitación: Loft |
  • Etiquetas: Dibujos |

Accede con tu usuario de Plan Reforma o bien date de alta (de forma totalmente gratuita) para poder enviar tus comentarios.

Acceso Usuarios | Plan Reforma
Alta Particulares | Alta Profesionales
Lluïsa Arranz : Es una casa de pueblo, típica de pescadores, que forma parte del patrimonio del casco histórico de Cadaqués.
Cargando... Loading...